Задумывались ли вы, что связывает древнегреческий храм с современным заводским цехом? Правильно, колонны. И те, и другие нуждаются в прочном, надёжном основании. Фундамент под колонну — это не просто бетонная подушка. Это инженерный узел, который гарантирует, что ваш столб, опора или несущая колонна не наклонится, не просядет и простоит десятилетия, принимая на себя вес конструкций. Он защищает от капризов грунта, морозного пучения и просто передаёт огромные нагрузки в землю, минуя слабые поверхностные слои.

Чтобы создать такое основание, нужен не энтузиазм, а расчёт. Всё начинается с геологии: что у нас под ногами? Глина, песок, торф? Затем считаем нагрузки: что будет нести колонна — крышу веранды или многотонную балку перекрытия? И только потом выбираем тип фундамента, его размеры и материалы. Климат, расположение, доступность — всё это играет роль. Пропустишь что-то — и прощай, устойчивость.

В этом руководстве мы пройдём весь путь: от выбора типа фундамента до момента, когда колонна уже гордо стоит на своём «постаменте». Разберём детали, без которых можно наломать дров. Следуйте шагам — и вы получите не просто яму с бетоном, а капитальную основу, которая не подведёт.
Какие бывают фундаменты для колонн? Выбираем тип
Выбор типа фундамента — это первый и самый важный стратегический шаг. Он зависит от того, на чём мы строим и что собираемся ставить.
Свайный фундамент
Когда грунт слабый (торф, плывун, насыпь), а нагрузка большая, на помощь приходят сваи. По сути, мы «прошиваем» слабые слои и опираем колонну на глубокий, плотный пласт. Количество, диаметр и глубина свай рассчитываются исходя из веса колонны и свойств грунта. Идеально для промышленных объектов или домов на проблемных участках.
Ленточный фундамент
Классика для относительно хороших грунтов. Это бетонная лента, которая проходит под всеми колоннами каркаса, связывая их в единую систему. Бывает монолитным (заливается на месте) или сборным (из блоков). Его главный плюс — равномерное распределение нагрузки от нескольких колонн. Чтобы усилить, обязательно армируют.

Плитный фундамент
Представьте себе мощную бетонную «подушку» под всем зданием или группой колонн. Это плитный фундамент. Он отлично работает на слабых и пучинистых грунтах, потому что «плавает» вместе с сезонными подвижками почвы, не давая колоннам перекоситься. Требует много бетона и арматуры, но иногда это единственный выход.

Комбинированный фундамент
Здесь нет догм. Например, можно объединить сваи с монолитной плитой (свайно-плитный фундамент) или ленту со сваями по углам. Такой подход используют в самых сложных условиях, когда нужно сочетать преимущества разных типов для максимальной надёжности и экономии.
Выбор — всегда компромисс между надёжностью, стоимостью и сроками. Для тяжёлой колонны на болоте нужны сваи. Для лёгкой беседки на суглинке — мелкозаглублённая лента. Главное — не угадывать, а считать.
Сводная таблица: какой фундамент для чего?
| Тип фундамента | Как устроен | Где применять |
|---|---|---|
| Свайный | Колонна опирается на глубокие железобетонные, винтовые или буронабивные сваи, передающие нагрузку на плотные слои грунта. | Слабые, просадочные грунты; высокий уровень грунтовых вод; большие нагрузки (промздания, мосты). |
| Ленточный | Непрерывная железобетонная лента под рядами колонн. Распределяет нагрузку линейно. | Относительно прочные грунты. Каркасные дома, гаражи, одноэтажные цеха. |
| Плитный | Сплошная железобетонная плита под всем сооружением или под отдельной тяжёлой колонной. | Слабые, пучинистые грунты; необходимость равномерно распределить очень большую нагрузку. |
| Комбинированный | Сочетание разных типов, например, сваи + ростверк (лента), сваи + плита. | Сложные грунтовые условия, необходимость удешевления без потери надёжности, сейсмические районы. |
Итак, выбирая, нужно учесть триаду: грунт — нагрузка — бюджет. Для капитального строительства этот выбор должен сделать инженер-проектировщик на основе расчётов и геологии. Для садовой колонны можно обойтись здравым смыслом и справочниками.
Запомните: фундамент — это та часть, на которой экономить нельзя. Лучше один раз заплатить за расчёт и правильный тип, чем потом бесконечно бороться с креном и трещинами.

На какую глубину закапываться? Определяем заложение
Глубина — это не «сколько лопата достанет». Это инженерный параметр, который зависит от трёх китов:

- Глубина промерзания (ГПГ). Самое важное правило для России: подошва фундамента должна быть ниже этой отметки. Иначе зимой замёрзшая вода в грунте будет выталкивать его, как поплавок. Карты ГПГ есть в интернете для каждого региона.
- Несущий слой грунта. Копать нужно до того слоя, который способен выдержать нагрузку. Если под плодородкой идёт слабая глина, а плотный суглинок только на 1.5 метрах — копаем до суглинка.
- Уровень грунтовых вод (УГВ). Если вода близко, фундамент нужно заглублять с осторожностью, предусматривать дренаж и усиленную гидроизоляцию. Иногда высокий УГВ заставляет выбрать сваи вместо ленты.

Определить все эти параметры «на глаз» невозможно. Нужна либо геологическая экспертиза (бурение скважин и анализ), либо, как минимум, ознакомление с отчётами по соседним стройкам. Расчёты глубины, диаметра свай, толщины плиты — это работа для инженера. Не пренебрегайте ею.
Строительные нормы (СП) — ваш лучший друг. В них прописаны минимальные глубины заложения для разных грунтов и регионов. Игнорирование этих правил — прямой путь к аварийной ситуации.

Итог: глубина — это всегда расчёт. Для лёгкой деревянной колонны забора можно взять 0.8-1 м (ниже промерзания). Для стальной колонны цеха на мягком грунте может понадобиться свая длиной 4-6 метров. Разница очевидна.

Из чего будем делать? Выбор материалов
Материал фундамента должен соответствовать нагрузке и агрессивности среды. Вот основные варианты:
Железобетон (монолитный)
Король современных фундаментов. Сочетание бетона (работает на сжатие) и стальной арматуры (работает на растяжение и изгиб) даёт универсальную, сверхпрочную конструкцию. Можно отлить любую форму: куст свай, плиту сложной конфигурации, высокий ростверк. Требует качественного бетона и правильного армирования.

Сборные железобетонные элементы
Готовые сваи, фундаментные блоки (ФБС), балки ростверков. Плюс: скорость монтажа (не надо ждать, пока застынет бетон). Минус: нужен кран, сложнее добиться монолитности, швы — слабые места для воды.

Кирпич и бутовый камень
Исторические, но уходящие в прошлое материалы. Требуют высокого мастерства каменщика, много ручного труда. Могут применяться для небольших декоративных колонн в сухих грунтах. Для серьёзных нагрузок не рекомендуются.
В 95% случаев для фундамента под колонну сегодня выбирают монолитный железобетон. Он гибок в проектировании, надёжен и долговечен. Остальные материалы — для специфических задач или реконструкции.

Считаем нагрузку: что должна выдержать колонна и её основание?
Без цифр — никуда. Нагрузка на фундамент складывается из:
- Постоянной: вес самой колонны, опирающихся на неё балок, перекрытий, кровли.
- Временной: вес людей, мебели, оборудования, снега на крыше (это важно!).
- Особой: сейсмика, ветровое давление (для высоких колонн).

Расчёт — это задача для конструктора. Он использует специальные программы (SCAD, ЛИРА) или формулы, учитывая все факторы. На выходе получаем конкретную цифру в тоннах или килоньютонах — нагрузку, которую должна принять одна колонна и передать фундаменту.
Затем эта цифра идёт в расчёт фундамента: определяются площадь подошвы (чтобы давление на грунт не превышало расчётного сопротивления), сечение и армирование.
Попытка «прикинуть на глазок» для чего-то большего, чем столбик для забора, — верный способ получить просадку или разрушение. Если проект есть — следуйте его цифрам. Если проекта нет — закажите расчёт у специалиста. Это не роскошь, а необходимость.
Какой бетон нужен? Выбираем марку
Бетон — это камень, который мы создаём сами. Его прочность обозначается маркой или классом. Для фундаментов колонн обычно применяют:
- B15 (М200) — для малонагруженных конструкций, оснований под лёгкие колонны в сухих грунтах.
- B20 (М250) – B22.5 (М300) — наиболее распространённый выбор. Золотая середина по прочности, морозостойкости и цене. Подходит для большинства свай, лент, ростверков.
- B25 (М350) и выше — для ответственных конструкций, колонн, испытывающих высокие динамические нагрузки, или в агрессивных средах.
Морозостойкость (F) и водонепроницаемость (W) — вторые по важности параметры. Для фундамента, который будет в земле, минимально F100 и W4.

Совет: Лучше купить готовый товарный бетон на заводе, чем месить в корыте. Вы получите гарантированную марку, однородность и нужное количество. Для фундамента под колонну экономия на бетоне — преступление.
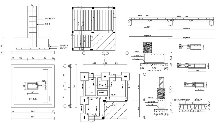
Армирование: стальной скелет фундамента
Бетон прочен на сжатие, но боится изгиба и растяжения. Чтобы он с этим справлялся, внутрь закладывают стальную арматуру. Это и есть армирование.
| Что используется? | Роль в конструкции | Важные нюансы |
|---|---|---|
| Рабочая арматура (А400/А500) Прутки диаметром 12-32 мм. | Воспринимает основные растягивающие усилия. Располагается в нижней и верхней частях ленты, ростверка, по периметру сваи. | Диаметр и количество определяются расчётом. Минимальный диаметр — 12 мм. |
| Конструктивная и монтажная арматура Прутки 6-10 мм, хомуты, каркасы. | Связывает рабочую арматуру в каркас, предотвращает выпучивание, распределяет местные напряжения. | Шаг хомутов обычно 150-300 мм. Важно для сохранения геометрии при заливке. |
| Защитный слой бетона | Слой бетона между арматурой и внешней средой. Защищает сталь от коррозии. | Для фундаментов в земле — минимум 50-70 мм. Обеспечивается пластиковыми фиксаторами. |
Арматурный каркас — это не «лишние железки». Это то, что делает из хрупкого бетонного блока гибкую и прочную конструкцию. Вяжите его аккуратно, согласно чертежам. Сварка допускается, но для арматуры класса А400С (буква «С» означает свариваемую). Обычную арматуру лучше вязать отожжённой проволокой.

Вода — враг №1. Гидроизоляция и дренаж
Вода способна разрушить даже самый прочный бетон (вымывание, замораживание, агрессивные соли). Защита обязательна.
- Дренаж. Если участок влажный, УГВ высокий — по периметру фундамента (или под ним) укладывают перфорированные трубы в щебёночной обойме, отводящие воду в коллектор или колодец.
- Гидроизоляция. Бывает обмазочной (битумная мастика), оклеечной (рулонные материалы типа технониколь), проникающей (составы, кристаллизующиеся в порах бетона). Фундамент под колонну обычно обмазывают мастикой в 2 слоя после снятия опалубки.
- Отмостка. Не забывайте про неё! Бетонная или плиточная полоса с уклоном от здания шириной 0.8-1.2 м. Отводит поверхностные воды от фундамента.

Правило: чем влажнее грунт, тем серьёзнее должна быть защита. Иногда требуется комплекс: дренаж + обмазочная изоляция + пристенный дренажный мат.
Устройство опорной части: плиты и башмаки
Как колонна соединяется с фундаментом? Через опорную плиту (башмак). Это стальная пластина, приваренная к основанию металлической колонны, или оголовок сваи для бетонной колонны.
Для монолитных колонн
Из фундамента (ростверка) выпускают арматурные стержни (так называемые «выпуски»), которые потом связываются с арматурным каркасом самой колонны. Получается монолитное соединение.

Для металлических колонн
В свежий бетон фундамента на расчётную глубину закладывают анкерные болты. После затвердевания бетона на эти болты через просверленные отверстия устанавливают опорную плиту колонны, наживляют гайки, выверяют колонну по уровню и отвесу, затем окончательно затягивают. Пространство между плитой и бетоном часто заполняют безусадочным цементным раствором (например, ВЦ).
Точность установки анкерных болтов — критически важна! Их положение должно строго соответствовать монтажному чертежу. Малейший перекос сделает установку колонны невозможной или приведёт к монтажным напряжениям. Используйте кондукторы или жёсткие рамки для фиксации болтов при заливке.

Техника в помощь: что использовать на стройке?
Ручной труд хорош для мелких работ. Для фундамента под колонну почти всегда нужна техника.
- Экскаватор/мини-погрузчик. Для рытья котлована под плиту или траншеи под ленту. Руками копать кубометры грунта — неблагодарный труд.
- Буровая установка. Для свайного фундамента — обязательно.
- Бетононасос или автобетоносмеситель с лотком. Заливать бетон из вёдер — долго и некачественно. Нужна непрерывная подача большого объёма.
- Виброплощадка или глубинный вибратор. Для уплотнения бетонной смеси и удаления пузырьков воздуха. Без этого бетон будет пористым и слабым.
- Кран. Для установки сборных элементов (свай, блоков), а также для монтажа самой металлической колонны.

Нанимая технику, думайте не только о стоимости, но и о логистике. Сможет ли миксер подъехать к месту заливки? Хватит ли места для работы крана? Продумайте это заранее.

Процесс от А до Я: заливка и уход за бетоном
Заливка — кульминация. Вот краткий алгоритм для монолитного фундамента:
- Подготовка основания. Уплотнённая песчано-гравийная подушка, гидроизоляция (например, плёнка).
- Установка опалубки. Прочная, жёсткая, неразрывная. Проверьте уровни!
- Монтаж арматурного каркаса. Согласно проекту, с защитным слоем.
- Заливка бетона. Непрерывно, слоями. Сразу после заливки — уплотнение вибратором.
- Выравнивание поверхности. Особенно важно для места установки колонны.
- Уход за бетоном. Самый часто забываемый этап! Накройте плёнкой от солнца и ветра. В жару поливайте водой первые 3-5 дней. Бетон должен набирать прочность во влажной среде, а не высыхать.

Снимать опалубку можно не ранее, чем бетон наберёт 70% прочности (летом это 7-10 дней, зимой — намного дольше). Полную нагрузку (установку колонны) дают только после набора 100% проектной прочности — через 28 суток.
Не пытайтесь ускорить процесс, нагружая фундамент раньше времени. Несозревший бетон может дать трещины, которые сведут на нет все ваши усилия. Наберитесь терпения.

Технологическая карта: ключевые этапы заливки
| Этап | Что делаем? | Чем и как контролируем? |
|---|---|---|
| 1. Подготовка основания | Устройство и трамбовка подушки. Укладка гидроизоляции. | Визуально, проверка уровня. |
| 2. Опалубка и арматура | Сборка опалубки, установка армокаркаса, фиксация анкерных болтов. | Сверка с чертежами, контроль геометрии, защитного слоя. |
| 3. Приёмка и заливка бетона | Подача, распределение и уплотнение бетонной смеси вибратором. | Паспорт на бетон, контроль подвижности смеси, визуальный контроль уплотнения (исчезновение пузырей). |
| 4. Отделка и уход | Выравнивание поверхности, накрывание плёнкой, увлажнение. | Контроль ровности, поддержание влажностного режима. |
Финальный акт: монтаж колонны
Фундамент готов и выстоялся. Теперь главное — установить колонну точно, ровно и надёжно.

- Подготовка. Очистка поверхности фундамента от грязи, проверка положения анкерных болтов.
- Подъём и установка. С помощью крана колонна устанавливается на анкерные болты. Крановщик и монтажники работают в связке.
- Выверка. Самая ответственная часть. С помощью нивелира, теодолита и отвесов колонну выставляют строго вертикально в двух плоскостях. Фиксируют временными распорками (расчалками).
- Окончательное закрепление. Затягивают гайки на анкерных болтах с проектным усилием (динамометрическим ключом). Зазор под опорной плитой заполняют цементным раствором.

После этого можно снимать временные связи и приступать к монтажу балок или ферм, которые будут опираться на колонну.
Криво установленная колонна — это не эстетический дефект. Это источник дополнительных изгибающих моментов, который может привести к аварии. Не жалейте времени на выверку. Используйте точные инструменты.

Галерея: как это выглядит в реальности
Лучше один раз увидеть. Вот подборка фото различных этапов устройства фундаментов под колонны: от армирования и заливки до готовых конструкций.
















